不銹鋼收費亭系列BH-BXG-A-04
產品型號:BH-BXG-A-04
尺寸:可咨詢客服定制
顏色: 特殊顏色可定制
配套產品:可咨詢客服
產品詳情
產品優(yōu)點
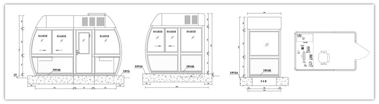
收費亭制作說明:
⑴收費亭立柱采用∮140(1/4)圓柱;骨架為70*50不銹鋼板成形龍骨架;
⑵外部采用優(yōu)質1.0mm不銹鋼板做為收費亭外裝飾板,內部采用3.0mm鋁塑板(也可采用彩鋼板或防火板);
⑶收費亭地板采用靜電地板;
⑷收費亭采用不銹鋼推拉窗,玻璃為5mm厚透明鋼化玻璃;
⑸收費亭內線路套管在夾層內隱藏,亭內標配電控箱、五孔插座、日光燈盤、開關、不銹鋼辦公臺.
詳細展示















